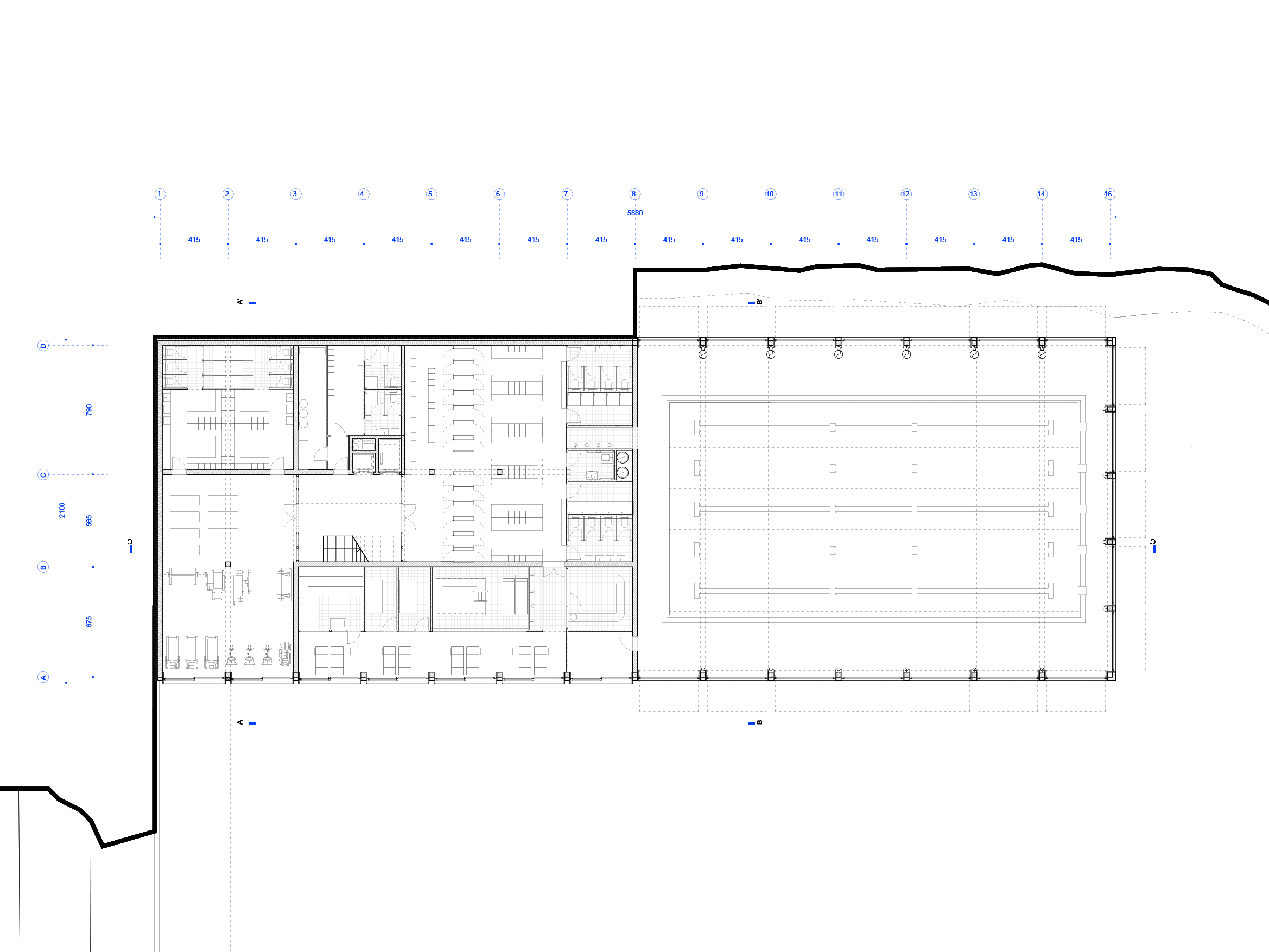
Along a natural slope in the terrain, the sports and wellness center takes shape through three distinct volumes, each responding to function with clarity and precision. The architecture organizes movement and rest, defining spaces that extend seamlessly into their surroundings. The entrance level welcomes visitors with a restaurant and reception, while below, spaces for sport, water, and relaxation unfold in direct connection to the outdoors.

LOCATION- Bignasco (CH)
YEAR- 2021
SURFACE- 2.800m2

Projects

 
INFO