













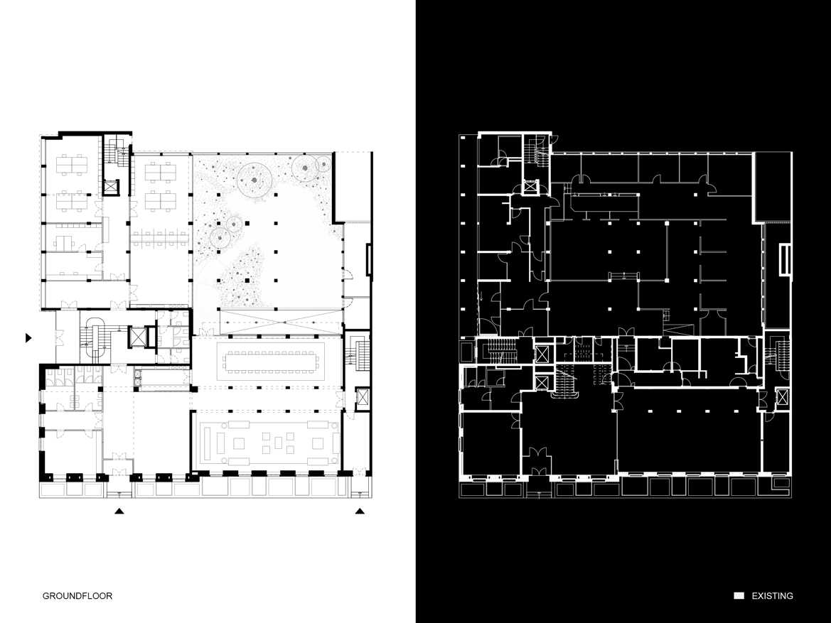
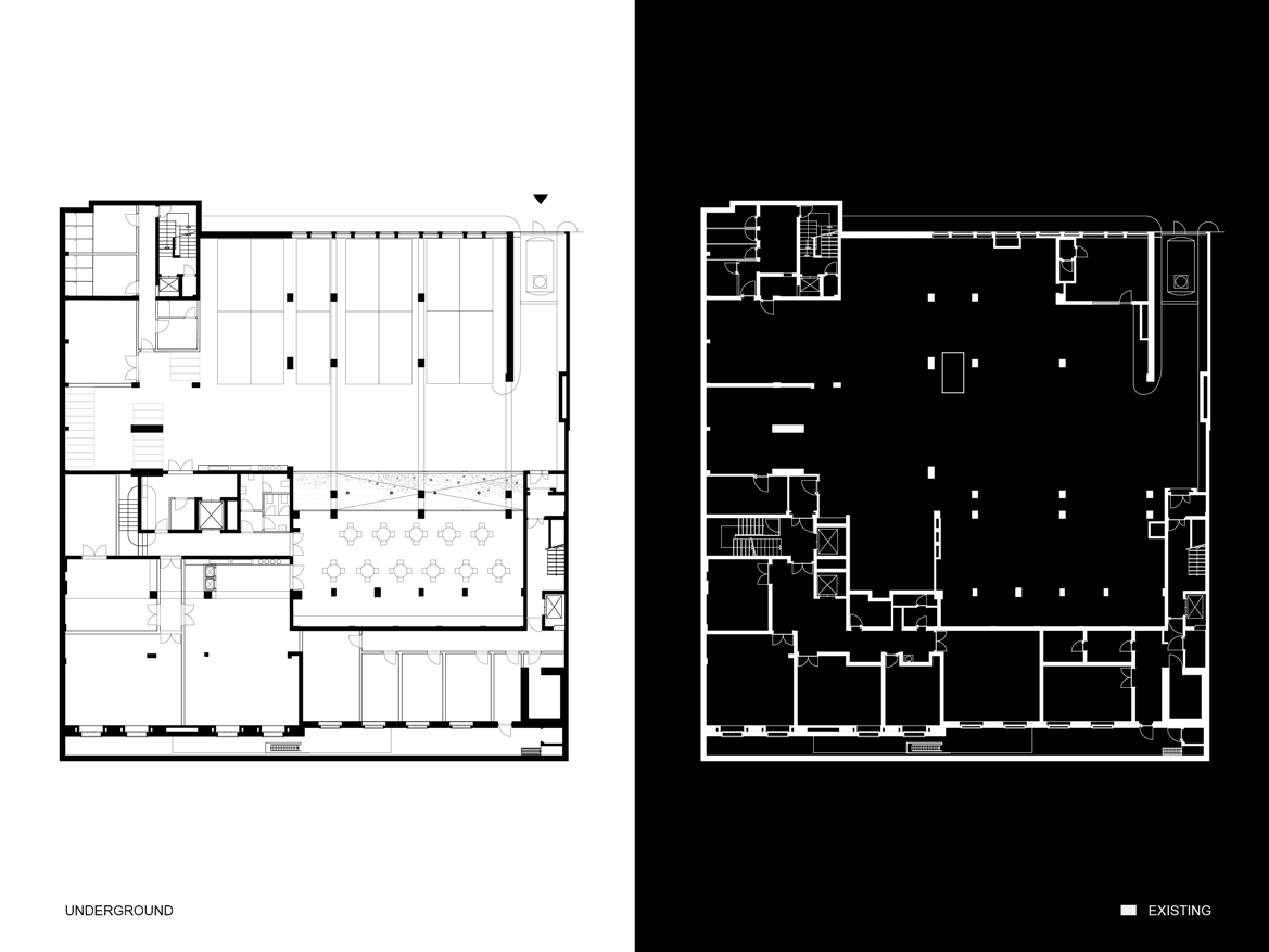
A precise intervention, inserted as a slender volume between the existing buildings, clarifies circulation, strengthens structure, and integrates new energy systems. The new core unites all users—ambassador, staff, guests—through a shared spatial experience, fostering openness within the embassy. The architecture respects its heterogeneous past: the Georgian, the modernist, the contemporary—each clearly defined yet connected. A garden is introduced, a quiet counterpart to the city, bringing permeability, biodiversity, and a moment of pause within the dense urban fabric.
In collaboration with MacIver-Ek Chevroulet.
LOCATION- London (UK)
YEAR- 2022
SURFACE- 6.200m2